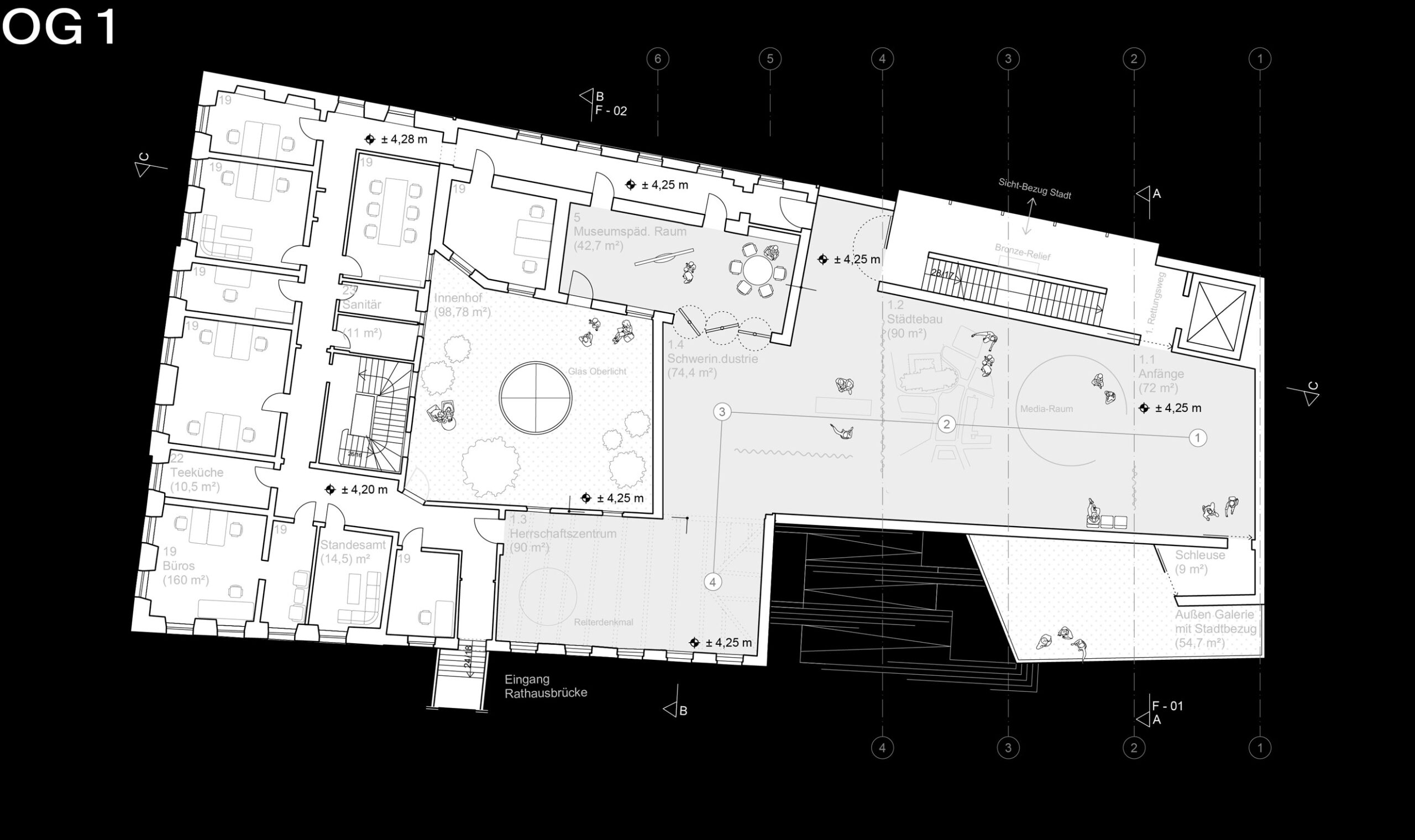
179
Stadtgeschichtsmuseum Schwerin
Sport/Bildung/Kultur
Schwerin
Wettbewerb
2025
178
Kunstbau: Sanierung
Sport/Bildung/Kultur
München
Realisierung
aktuell
177
Villa Stuck: Sanierung
Sport/Bildung/Kultur
München
Realisierung
aktuell
176
Loth 29
Multiuse
München
Planung
aktuell
175
K20/22
Wohnen
München
Realisierung
2024
174
Neubiberger Straße
Multiuse
München
Realisierung
aktuell
173
Maderbräustraße
Multiuse
München
Planung
aktuell
172
Gabelsbergerstraße 44/46
Multiuse
München
Planung
aktuell
171
Gabelsbergerstraße 77
Multiuse
München
Planung
aktuell
170
N81
Wohnen
München
Planung
aktuell
169
BAY55
Büro und Gewerbe
München
Planung
aktuell
168
oscarmaria
Essen und Trinken
München
Realisierung
2022
167
LEO119/121
Multiuse
München
Planung
aktuell
166
LEO87
Multiuse
München
Planung
aktuell
165
Landwehrstraße 81
Wohnen
München
Planung
aktuell
164
Gabelsbergerstraße 28
Multiuse
München
Planung
aktuell
163
Nymphenburger Str. 92
Multiuse
München
Planung
aktuell
162
ERZ
Wohnen
München
Realisierung
aktuell
161
Rischart Theresienhöhe
Multiuse
München
Realisierung
2025
160
SOY
Wohnen
München
Realisierung
aktuell
159
Quartier am Baumwall
Multiuse
Hamburg
Planung
aktuell
158
Neubau 2 Zöttl
Büro und Gewerbe
München
Realisierung
aktuell
157
Umbau Heilmannstraße
Wohnen
München
Planung
2020
156
Eisstadion Geretsried
Sport/Bildung/Kultur
Geretsried
Realisierung
2020
155
SW2
Wohnen
München
Realisierung
2020
154
Hochhaus Shenzhen
Wohnen
Shenzhen, CN
Wettbewerb
2019
153
Outletcenter Lodenfrey
Büro und Gewerbe
München
Planung
2019
152
Heilmannstraße
Wohnen
München
Planung
2019
151
Erweiterung Damenstift
Büro und Gewerbe
München
Planung
2019
150
Schellinghöfe
Wohnen
München
Planung
2018
149
Café Rischart Marienplatz
Essen und Trinken
München
Realisierung
2018
148
Aufstockung Bäckerei Zöttl
Büro und Gewerbe
München
Planung
2018
147
Villa Gräfelfing
Wohnen
Gräfelfing
Realisierung
2018
146
T52 + 54
Wohnen
München
Realisierung
2017
145
T47
Wohnen
München
Realisierung
2017
144
Adalbertstraße 49
Wohnen
München
Realisierung
2017
143
Marketing Lodenfrey
Büro und Gewerbe
München
Realisierung
2016
142
Umbau Bäckerei Zöttl
Büro und Gewerbe
München
Realisierung
2016
141
Wacker Neuson
Büro und Gewerbe
Reichertshofen
Wettbewerb
2015
140
Stettiner Hütte
Sport/Bildung/Kultur
Bozen, IT
Wettbewerb
2015
139
Bauhaus Museum
Sport/Bildung/Kultur
Dessau
Wettbewerb
2015
138
Wohnhaus
Wohnen
Denning
Planung
2015
137
Kommunikationszentrum
Büro und Gewerbe
Mauerstetten
Wettbewerb
2014
136
Antike am Königsplatz
Sport/Bildung/Kultur
München
Planung
2014
135
Karl 36/Luise 25
Wohnen
München
Realisierung
2014
134
Wohnhaus
Wohnen
Iffeldorf
Realisierung
2014
133
Landtag Rheinland-Pfalz
Büro und Gewerbe
Mainz
Wettbewerb
2013
132
Paulaner-Brauerei
Büro und Gewerbe
München
Wettbewerb
2012
131
Aufhäuser Lodenfrey
Büro und Gewerbe
München
Planung
2012
130
Neubau Nano-Institut LMU
Sport/Bildung/Kultur
München
Wettbewerb
2012
129
Jüdisches Museum
Sport/Bildung/Kultur
Frankfurt a. M.
Wettbewerb
2012
128
Zentrale SOR Nürnberg
Büro und Gewerbe
Nürnberg
Wettbewerb
2012
127
Kindergarten Aichtal
Sport/Bildung/Kultur
Aichtal
Wettbewerb
2012
126
Wohnhaus
Wohnen
München
Planung
2012
125
Wohnhaus
Wohnen
München
Planung
2012
124
Hochhaus Ridlerstraße
Büro und Gewerbe
München
Planung
2012
123
Bäckerei Zöttl
Büro und Gewerbe
München
Realisierung
2012
122
Lodenfrey
Büro und Gewerbe
München
Realisierung
2012
121
Pienzenauerstraße 27
Büro und Gewerbe
München
Planung
2011
120
Amalienstraße 93
Wohnen
München
Planung
2011
119
Areal Maxvorstadt
Multiuse
München
Wettbewerb
2011
118
cancom Ausbau Bürofläche
Büro und Gewerbe
München
Planung
2011
117
Ev.-luth. Landeskirchenamt
Sport/Bildung/Kultur
München
Wettbewerb
2011
116
Ortserweiterung Kirchheim
Wohnen
Kirchheim
Wettbewerb
2011
115
upside east Medienbrücke
Essen und Trinken
München
Realisierung
2011
114
Olympisches Dorf
Wohnen
München
Wettbewerb
2010
113
Paradeplatz Forchheim
Büro und Gewerbe
Forchheim
Wettbewerb
2010
112
Hanns-Seidel-Platz
Multiuse
Neuperlach
Wettbewerb
2010
111
Kindergarten Telekom
Sport/Bildung/Kultur
München
Realisierung
2010
110
Kletterhalle Bruneck
Sport/Bildung/Kultur
Bruneck, IT
Wettbewerb
2009
109
Umbau ASV
Sport/Bildung/Kultur
München
Planung
2009
108
Hildegardstraße
Büro und Gewerbe
München
Planung
2009
107
Solarhaus Solln
Wohnen
Solln
Realisierung
2009
106
NS-Dokumentationszentrum
Sport/Bildung/Kultur
München
Wettbewerb
2008
105
Justizzentrum
Büro und Gewerbe
Bochum
Wettbewerb
2008
104
Areal ev.-luth. Kirche Bayern
Sport/Bildung/Kultur
München
Planung
2008
103
Schaumagazin
Sport/Bildung/Kultur
Brauweiler
Wettbewerb
2008
102
Kleinmarkthalle Frankfurt
Essen und Trinken
Frankfurt a. M.
Wettbewerb
2008
101
Arch. Zone und jüd. Museum
Sport/Bildung/Kultur
Köln
Wettbewerb
2008
100
Danner-Areal
Multiuse
Straubing
Wettbewerb
2008
99
Hans-Sachs-Haus
Büro und Gewerbe
Gelsenkirchen
Wettbewerb
2008
98
Gewerbehof am Westpark
Büro und Gewerbe
München
Realisierung
2008
97
Eltzer Hof
Multiuse
Mainz
Wettbewerb
2007
96
Kulturprojekt Marstall
Sport/Bildung/Kultur
München
Wettbewerb
2007
95
Hochschulcampus Garching
Sport/Bildung/Kultur
Garching
Planung
2007
94
Terminal Ostpreussenkai
Multiuse
Travemünde
Realisierung
2007
93
Wohnhaus
Wohnen
Jedling
Realisierung
2007
92
Mitten in München
Multiuse
München
Wettbewerb
2006
91
ThyssenKrupp Quartier
Büro und Gewerbe
Essen
Wettbewerb
2006
90
Umnutzung U-Turm
Sport/Bildung/Kultur
Dortmund
Wettbewerb
2006
89
Ausbau Franz-Joseph-Str.
Wohnen
München
Planung
2006
88
10Towers
Büro und Gewerbe
München
Realisierung
2006
87
Kulturzentrum Schaan
Sport/Bildung/Kultur
Schaan, LI
Wettbewerb
2005
86
Sozialpavillon Petuelpark
Sport/Bildung/Kultur
München
Realisierung
2005
85
Café Ludwig
Essen und Trinken
München
Realisierung
2005
84
Gebäude am Färbergraben
Büro und Gewerbe
München
Planung
2004
83
Sammlung Gunzenhauser
Sport/Bildung/Kultur
Chemnitz
Wettbewerb
2004
82
Aufstockung Frauenstraße
Wohnen
München
Realisierung
2004
81
Herosé – Stadt am Seerhein
Multiuse
Konstanz
Wettbewerb
2002
81
Löwenbräugelände
Multiuse
München
Wettbewerb
2003
79
Süddeutscher Verlag
Büro und Gewerbe
München
Wettbewerb
2002
78
Gästehaus Münchner Rück
Wohnen
München
Realisierung
2002
77
K21
Sport/Bildung/Kultur
Düsseldorf
Realisierung
2001
76
Opernhausplatz Zürich
Sport/Bildung/Kultur
Zürich, CH
Wettbewerb
2000
75
Marstallplatz Süd
Sport/Bildung/Kultur
München
Wettbewerb
2000
74
Verwaltung Allianz
Büro und Gewerbe
Unterföhring
Wettbewerb
2000
73
Sparkasse Ingolstadt
Büro und Gewerbe
Ingolstadt
Wettbewerb
2000
72
Museum Villa Stuck
Sport/Bildung/Kultur
München
Realisierung
2000
71
Bürogebäude Theresienhöhe
Büro und Gewerbe
München
Wettbewerb
1999
70
Campus bulthaup
Büro und Gewerbe
Hallbergmoos
Planung
1999
69
Bürogebäude „Am Peterstor“
Büro und Gewerbe
Regensburg
Wettbewerb
1998
68
Messepavillon ERCO
Büro und Gewerbe
Hannover
Planung
1998
67
Pressegroßvertrieb Jost
Büro und Gewerbe
Manching
Realisierung
1998
66
Apostolische Nuntiatur
Sport/Bildung/Kultur
Berlin
Wettbewerb
1997
65
Literaturhaus
Sport/Bildung/Kultur
München
Realisierung
1997
64
Medienpark Kampnagel
Büro und Gewerbe
Hamburg
Wettbewerb
1996
63
Kongresshotel und Kino
Multiuse
Ingolstadt
Wettbewerb
1996
62
Buchheim Museum
Sport/Bildung/Kultur
Feldafing
Wettbewerb
1996
61
Shopping Mall Mann Mobilia
Büro und Gewerbe
Karlsruhe
Wettbewerb
1995
60
Musicon Bremen
Sport/Bildung/Kultur
Bremen
Wettbewerb
1995
59
Photonikzentrum Adlershof
Büro und Gewerbe
Berlin
Wettbewerb
1995
58
Wissenschaftspark
Büro und Gewerbe
Gelsenkirchen
Realisierung
1995
57
Kunstbau Lenbachhaus
Sport/Bildung/Kultur
München
Realisierung
1994
56
Viehhof München
Büro und Gewerbe
München
Planung
1994
55
Neues Museum
Sport/Bildung/Kultur
Berlin
Wettbewerb
1994
54
Kindergarten Gelsenkirchen
Sport/Bildung/Kultur
Gelsenkirchen
Realisierung
1994
53
Verwaltung Mayr
Büro und Gewerbe
Mauerstetten
Planung
1993
52
Bayerische Vereinsbank
Büro und Gewerbe
Kirchberg, LU
Wettbewerb
1993
51
Verwaltung Fresenius
Büro und Gewerbe
Bad Homburg
Wettbewerb
1993
50
Aufstockung Rischart
Wohnen
München
Realisierung
1993
49
Pinakothek der Moderne
Sport/Bildung/Kultur
München
Wettbewerb
1992
48
Erholungsstätte Kolping
Sport/Bildung/Kultur
Pleinfeld
Wettbewerb
1992
47
SAT1 Studios
Büro und Gewerbe
Berlin
Planung
1992
46
Rhein-Main-Donau
Büro und Gewerbe
München
Wettbewerb
1991
45
Fuhrpark
Büro und Gewerbe
Krefeld
Wettbewerb
1991
44
Deutscher Pavillon Expo 92
Sport/Bildung/Kultur
Sevilla, ES
Wettbewerb
1990
43
Erweiterung Messehallen
Multiuse
Berlin
Wettbewerb
1990
42
Pressehaus DuMont
Büro und Gewerbe
Köln
Wettbewerb
1990
41
Wohnhaus
Wohnen
München
Planung
1990
40
P+R Fröttmaning
Multiuse
München
Wettbewerb
1990
39
Entwicklungszentrum Mayr
Büro und Gewerbe
Mauerstetten
Planung
1990
38
Schulungscenter Bayr. Rück
Sport/Bildung/Kultur
München
Realisierung
1990
37
Pressegroßvertrieb Jost
Büro und Gewerbe
Gersthofen
Realisierung
1990
36
Aufstockung Bayr. Rück
Büro und Gewerbe
München
Realisierung
1990
35
Verlagshaus Gruner + Jahr
Büro und Gewerbe
Hamburg
Realisierung
1990
34
Produktion Wilkhan
Büro und Gewerbe
Bad Münder
Wettbewerb
1989
33
Landesgirokasse Stuttgart
Büro und Gewerbe
Stuttgart
Wettbewerb
1989
32
Wohnhaus
Wohnen
Puchheim
Planung
1988
31
Heliowatt
Büro und Gewerbe
Berlin
Wettbewerb
1988
30
Technisches Zentrum ERCO
Büro und Gewerbe
Lüdenscheid
Realisierung
1988
29
Pressegroßvertrieb Jost
Büro und Gewerbe
München
Realisierung
1987
28
Schulungszentrum Siedle
Multiuse
Wiesbaden
Realisierung
1986
27
Umbau Bertelsmann
Büro und Gewerbe
Gütersloh
Wettbewerb
1985
26
Technologiezentrum Softlab
Büro und Gewerbe
München
Realisierung
1984
25
Café Rischart Fraunhoferstr.
Essen und Trinken
München
Realisierung
1983
24
Stadtsparkasse München
Büro und Gewerbe
München
Wettbewerb
1982
23
Karl-Valentin-Straße
Wohnen
München
Planung
1982
22
Rischart’s Backhaus
Büro und Gewerbe
München
Realisierung
1982
21
Wohnen Denninger Straße
Wohnen
München
Planung
1981
20
Heizwerk Gelnhausen
Büro und Gewerbe
Gelnhausen
Planung
1981
19
Wohnhaus
Wohnen
Endsfelden
Realisierung
1981
18
Wohnen Geiselgasteigstr.
Wohnen
München
Planung
1978
17
Wohnhaus
Wohnen
München
Planung
1978
16
Heidelberger Druck
Büro und Gewerbe
Heidelberg
Wettbewerb
1978
15
Schule Unterschleißheim
Sport/Bildung/Kultur
U.schleißheim
Wettbewerb
1976
14
Bürgerhaus Garching
Sport/Bildung/Kultur
Garching
Wettbewerb
1976
13
Universität Passau
Sport/Bildung/Kultur
Passau
Wettbewerb
1976
12
Bayerische Landesbank
Büro und Gewerbe
München
Wettbewerb
1976
11
Bayerische Rück
Büro und Gewerbe
München
Realisierung
1976
10
Bayerische Staatskanzlei
Büro und Gewerbe
München
Planung
1975
9
Pressegroßvertrieb Jost
Büro und Gewerbe
Ingolstadt
Realisierung
1971
8
Sportplatzanalge ASV
Sport/Bildung/Kultur
Unterföhring
Realisierung
1969
7
Wohnhaus
Wohnen
Büttendorf
Realisierung
1969
6
Pressegroßvertrieb Jost
Büro und Gewerbe
München
Realisierung
1968
5
Gästehaus
Wohnen
Kirchberg
Realisierung
1967
4
Wohnhaus
Wohnen
Gräfelfing
Realisierung
1967
3
Kunststofffabrik Möller
Büro und Gewerbe
Bielefeld
Realisierung
1966
2
Mantelfabrik Kemper
Büro und Gewerbe
Berlin
Realisierung
1964
1
Fabrik Neckarpalast
Büro und Gewerbe
Deizisau
Realisierung
1963